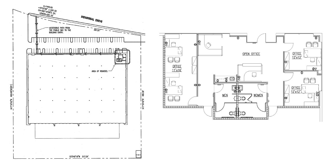
Building Size: ±111,160 SF
Building Dimensions: 280’ D x 397’ W
Parcel Size/FAR: ±6.43 acres / 39.7%
Administrative Office: ±1,345 SF
Warehouse Office: ±512 SF
Dock High Doors: 20 (9’ x 10’) – (8 doors with EOD, 3 doors with pit levelers)
Grade Level Doors: 3 (12’ x 14’)
Power: 2,000 Amps, 277/480V, 3-Phase
Lighting: T-5
Clear Height: ±30’ – 32′
BUILDING FEATURES
Sprinklers: ESFR
Column Spacing: 46.8’ x 49.7’
Floor Slab: 6”
Year Built: 2008
Skylights: 2%
Auto Parking: 70 stalls
Yard: Fully fenced, lighted and secured
Water: City of Stockton
Storm / Storm: City of Stockton
Power & Electric: PG&E
Zoning: I-G, General Industrial (City of Stockton)
LEASING BROKER INFORMATION:
Mike Goldstein, SIOR
209-475-5106
michael.goldstein@colliers.com
Alex Hoeck, SIOR
209-851-1191
alex.hoeck@colliers.com
Ryan McShane, SIOR
209-483-9851
ryan.mcshane@colliers.com













